Beskrivning
OBS! Ingen ångerrätt gäller på den här produkten då den tillverkas vid order och inte är lagerstandard hos Plannja.
Beläggning : Greencoat pro bt
Leveranstid: Ca 2-4 veckor
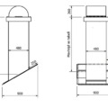
Skorstenshuv i takfall
Passar för:
- Plåttak
- Betong- och lertegelpannor
Detta ingår vid leverans:
- Underbeslagspaket
- Överbeslagspaket
- Stospaket
- Takpaket
- Skruvsats
Observera – följande ingår inte i leveransen:
- Droppstos för montering utanpå rökröret
Tillbehör för plåttak (beställs separat):
Tillbehör för betongtak (beställs separat):
Montering
Skorstenshuv i takfall betong/tegelpannor monteringsanvisning
Skorstenshuv i takfall plåttak monteringsanvisning
Mer information på Plannjas produktsida.




Delbetalning från 
Plannja Taklucka papptak
Avloppsluftare Plannja Typ
Ventilationshuv Typ 2 Plannja


Recensioner
Det finns inga recensioner än.